
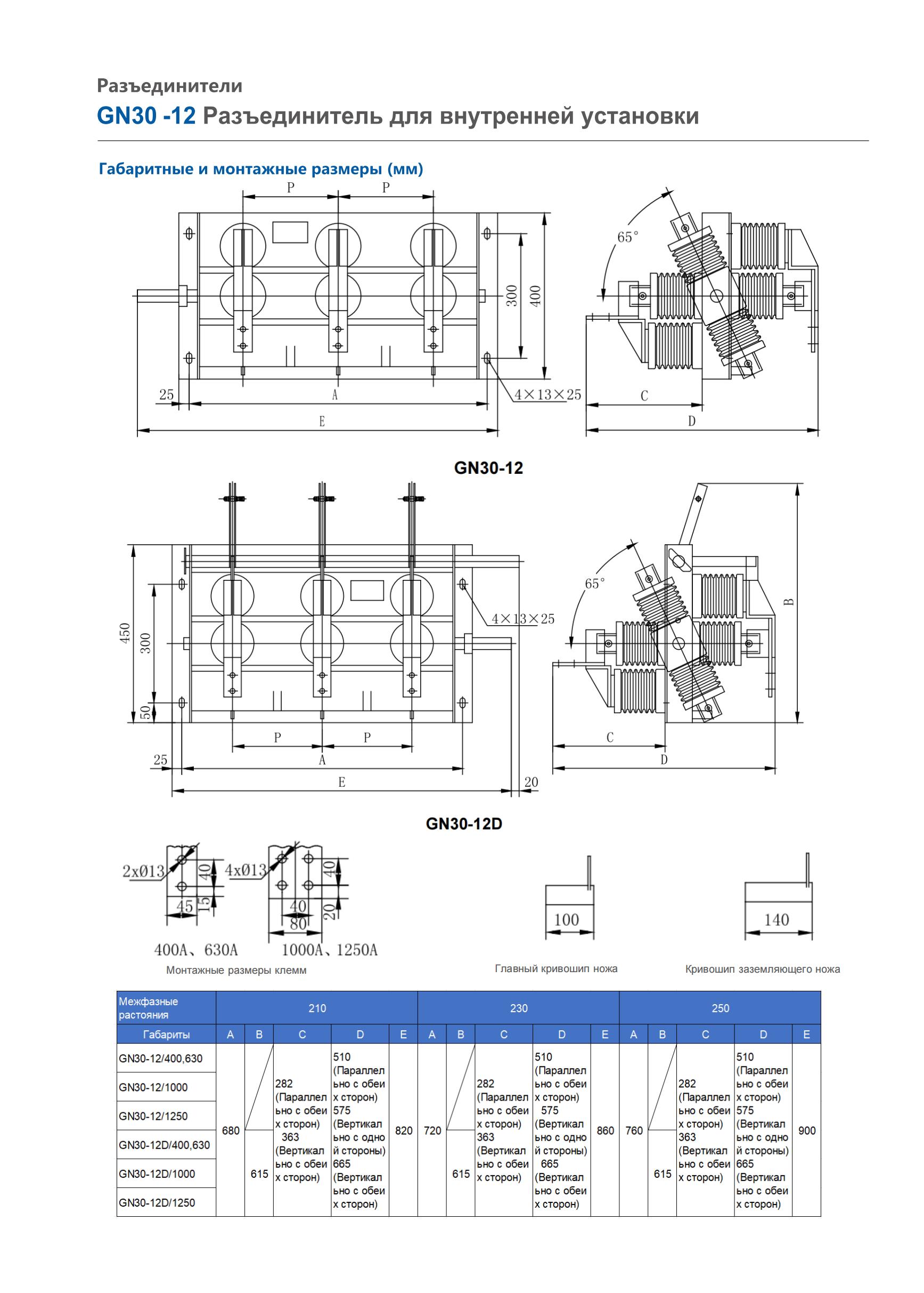
GN30-12(D) Разъединитель 10кВ для внутренней установки
Поворотный разъединитель для внутренней установки GN30-12(D) представляет собой разъединитель с поворотными контактами, в конструкции которого используется 2 группы изоляторов и поворотных контактов.
Разъединитель отличается компактными размерами, отличными параметрами изоляции и простотой эксплуатации.Параметры разъединителя соответствуют требованиям GB1985-89 «Высоковольтный разъединитель переменного тока и заземлитель», применяется в сетях с номинальным напряжением 10 кВ, частотой 50 Гц. Разъединитель может устанавливаться как в распределительный шкафт (ячейку), так и автономно.

